Mermoz 29
- 7.950€/mois
Description
Situé au cœur de l’Aéropôle de Gosselies, le site Mermoz 29 propose un entrepôt fonctionnel avec bureaux bénéficiant d’une accessibilité logistique optimale et d’un environnement économique dynamique, à proximité immédiate de l’aéroport de Charleroi et des principaux axes routiers.
Un espace logistique complet et performant
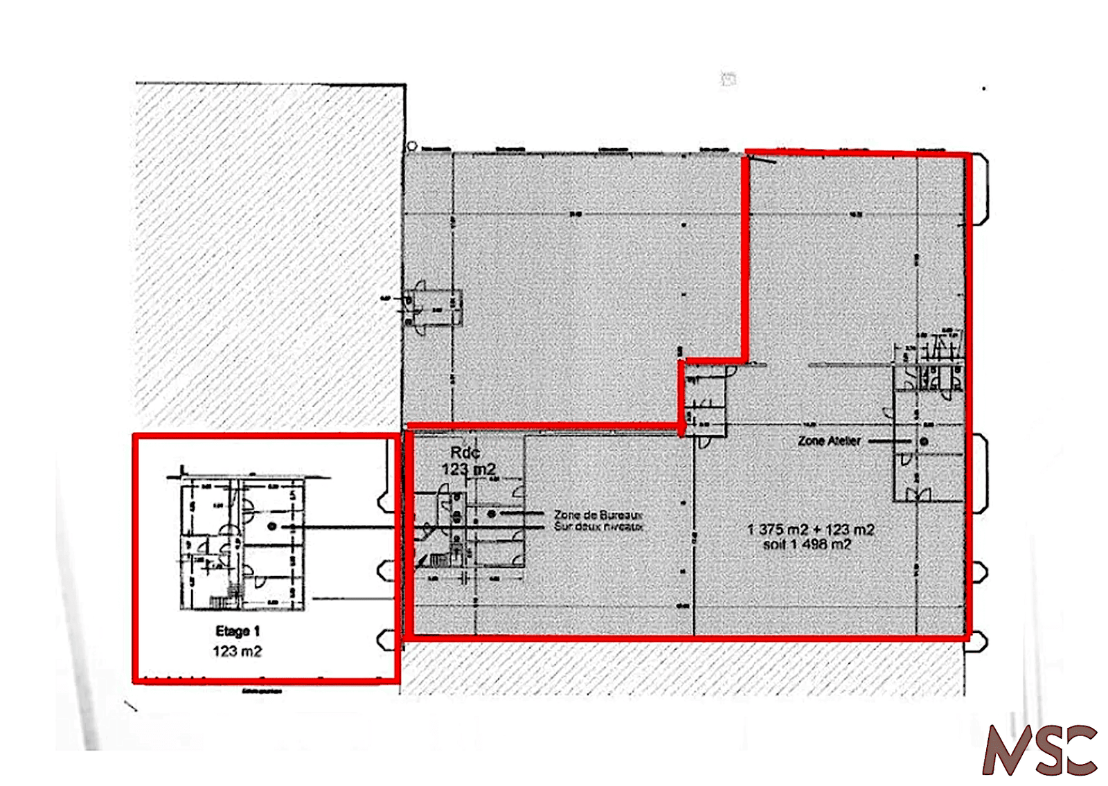
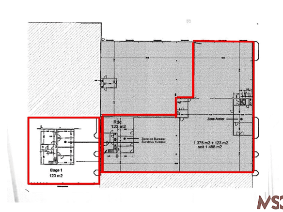
- Surface : 1748 m²
- Portes sectionnelles et hauteur libre de 7 m
- Bureaux de ± 250 m² pour équipes administratives
- Possibilité d’aménagement en collaboration avec My Space Concept
- Dalle béton lissée, structure béton, parois et plafonds isolés
- Stockage extérieur de ± 2.500 m²
- Site clôturé et sécurisé
- Accès direct via portail
- Grand parking et aire de manœuvre adaptée aux camions
Une accessibilité stratégique
- Accès rapide à l’E42, à l’A54, au R3 et à la N5
- À deux pas de l’aéroport Charleroi Brussels Sud
- Proximité immédiate des pôles commerciaux CITY NORD et ESPACE NORD
- Zone d’activités reconnue (Aéropôle – entreprises, PME, centres technologiques Biopark)
- Mobilité facilitée : axes rapides + transports TEC à proximité
Un site idéal pour les activités logistiques
Le Mermoz 29 constitue une opportunité logistique rare dans un secteur prisé pour sa connectivité et sa sécurité. Il convient parfaitement aux activités de stockage, distribution, transport, e-commerce ou industrie légère, nécessitant flux et accessibilité.
Contactez-nous dès aujourd’hui pour obtenir plus d’informations ou planifier une visite du site !
Détails
Surface 1748 m²
Mis à jour le octobre 25, 2025 à 11:33 pm
Détails additionnels
-
Parking: Oui
-
Portes sectionnelles: Oui
Adresse
-
Adresse: Avenue Jean Mermoz, 29
-
Ville: Gosselies
-
Province: Hainaut
-
Code postal: 6041
-
Pays: Belgique
Informations de contact
- Giuseppe











